產品詳情
◆產品概述:
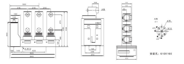
ZN63(VS1)-12型側裝式真空斷路器系戶內高壓開關設備,適用于額定電壓12千伏、頻率50Hz的三相電力系統(tǒng)中,作為保護和控制電器使用,由于真空斷路器的特殊優(yōu)越性,尤其適用于需要額定電流下的頻繁操作,或多次開斷短路電流的場所。
ZN63(VS1)-12型側裝式真空斷路器彩固定安裝,主要用于固定開關柜,該斷路器既可單獨使用,更適用于環(huán)網供電、箱式變或各種非標供電系統(tǒng)。
◆執(zhí)行標準:
GB1984-2003《交流高壓斷路器》,
GB/T11022-1999《高壓開關設備和控制設備標準的共用技術要求》;
JB/T3855-2008 《高壓交流真空斷路器》,
DL403-91,《12-35KV戶內交流高壓斷路器訂貨技術條件》。
◆特點:
采用彈簧操動機構、斷路器本體一體式設計,既可做為固定安裝單元,也可配用專用推進機構,組成手車單元使用。
◆安裝方式:
固定安裝
◆產品選型
◆使用條件:
周圍空氣溫度:上限+40度,下限-40度;
海拔:≤200(hn(若海拔增高,則額定絕緣水平相應提高
風壓:不超過700Pa(相當于風速34m/s);
地震烈度:不超過8度;
污穢等級:Ⅳ級;
大日溫差:不超過25度;
相對濕度:日平均不大于95%,月平均不大于90%;
無易燃、爆炸危險、化學腐蝕及劇烈振動的場所



